CGM si aggiudica i lavori di costruzione di una nuova scuola e palestra, da realizzarsi sul territorio del Comune di Saronno (VA).
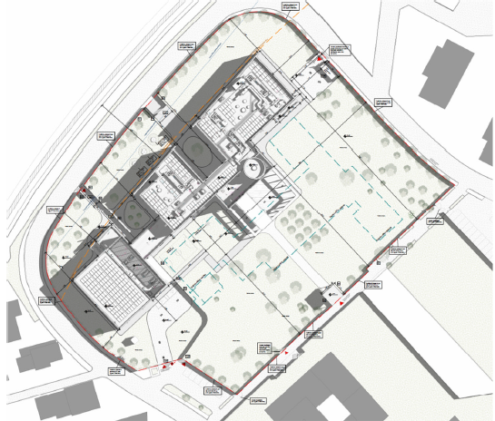
L’area di intervento si colloca nella parte settentrionale del territorio comunale di Saronno in una zona a destinazione prevalentemente scolastica e residenziale. Infatti, qui sono presenti gli edifici dell’esistente scuola primaria “G. Rodari”, la scuola dell’Infanzia “C. Collodi” e la Scuola Asilo Nido. Questo complesso di edifici è circondato da un’ampia area verde sia di pertinenza, che pubblica, ed è servito da una serie di parcheggi pubblici.
ll nuovo intervento trova collocazione all’interno dell’area verde di pertinenza dell’esistente scuola primaria per la quale il progetto ne prevede la demolizione successivamente al completamento dei lavori e attivazione della nuova scuola.
Il lotto di intervento, che comprende tutta l’area oggi di pertinenza della scuola primaria, confina a nord, est e ovest con via Valletta, mentre a sud è delimitata da una via a circolazione pedonale, che serve l’ingresso a tutti
e 3 gli edifici scolastici.
Oltre via Valletta, è invece presente il tratto di linea ferroviaria Saronno-Como, che separa l’edificato da un’ampia parte di territorio a prevalente destinazione agricola.
L’area interessata dal progetto si presenta di forma irregolare e prevede l’eliminazione dell’esistente scuola primaria (2 piani fuori terra e un piano interrato) e della relativa palestra.
Il progetto prevede la realizzazione di una nuova scuola primaria con spazi didattici flessibili, sia in termini di numero di utenti sia in termini di diversa tipologia di insegnamento.
L’accesso principale all’area di progetto è previsto in corrispondenza dell’esistente via pedonale che serve anche i due edifici scolastici limitrofi.
Questo è caratterizzato da una cancellata rientrante e viene coperto attraverso una pensilina, così da proteggere gli utenti in attesa all’ingresso.
A ovest del parcheggio esistente, lungo via Valletta, è collocato un accesso carrabile che rende possibile il posteggio all’interno dell’area agli utenti DA. Questa soluzione è legata proprio alla grande estensione dell’area di progetto che prevede un’ampia zona verde intorno; dunque, si è scelto di ridurre le distanze di percorrenza per tali utenti. Il parcheggio sarà in corrispondenza della zona palestra e potrà essere utilizzato anche in orario extra-scolastico, avendo diretta relazione con l’atrio della zona sportiva. Durante l’orario scolastico sarà comunque possibile raggiungere da esso tutte le porzioni di edificio attraverso sistemi di percorsi pedonali interni ed esterni.
Due ulteriori accessi sono posti a nord. Quello più ad ovest, carrabile, è necessario per il raggiungimento dei
locali tecnici posti a nord del blocco spogliatoio. Davanti ad essi, è infatti collocato un piccolo spazio di manovra per l’inversione di marcia dei manutentori. In alternativa, tale accesso può essere utilizzato anche in orario extra-scolastico, come ulteriore accesso all’area sportiva. Il secondo ingresso nord, anch’esso carrabile, assume un’importanza strategica, soprattutto nelle fasi di cantiere. Fintanto che l’intero progetto non sarà terminato, infatti, costituirà l’accesso principale alla scuola. La sua collocazione è in una posizione centrale, in diretto contatto con l’atrio e i collegamenti verticali, creando un’interessante relazione con la piazza della corte.
Ad est, si trova poi l’ultimo degli accessi, anch’esso carrabile. La sua funzione è strettamente legata alla mensa, alla quale arriveranno i pasti già pronti da distribuire agli alunni. In corrispondenza di questo ingresso,
già esistente per accedere al seminterrato, è affiancato uno spazio recintato, destinato allo stoccaggio dei rifiuti in attesa della raccolta dagli enti preposti.
La possibilità di avere numerosi accessi può diventare un punto di forza per differenziare i flussi di accesso.





Il nuovo edifico è caratterizzato da un sistema di volumi accostati tra loro, per la maggior parte caratterizzati da due piani fuori terra, ad eccezione del corpo amministrativo ad un solo piano. Il nuovo complesso si colloca all’interno di un lotto prospicente ad aree già destinate a servizi per l’istruzione: lo stesso lotto è infatti attualmente già caratterizzato dall’esistente scuola primaria e nelle aree limitrofe sono presenti la scuola dell’Infanzia “C. Collodi” e la Scuola Asilo Nido.
L’edificio, vista la necessità di costruire la nuova scuola mantenendo in essere quella esistente fino alla fine dei lavori, appare dislocato nella parte nord ovest del lotto. Questo genera un’ampia zona esterna verde, che crea un filtro di separazione dalle altre due scuole esistenti. Un ulteriore vincolo nella definizione volumetrica dell’edificio è stata la presenza di una fascia di rispetto ferroviaria di 30 m che in parte insiste sull’area stessa.
Questi vincoli preesistenti sono stati quindi l’occasione per pensare ad un edificio composto da volumi che frazionandosi e unendosi riescono ad inserirsi come pezzi di puzzle all’interno del contesto. Questo, tuttavia, non deve far pensare ad un edificio le cui funzioni e spazi sono separati e disconnessi. Al contrario, è possibile invece creare nuove spazialità e nuove visuali, in cui interno ed esterno interagiscono come in un unicum. Gli spazi esterni, infatti, diventano ampliamenti degli spazi didattici interni.
L’area sportiva è inserita all’interno della concezione unitaria dell’edificio e degli spazi interni, ma conserva contestualmente una vocazione più indipendente che rende possibile un utilizzo anche al di fuori dell’orario scolastico.
Il complesso adotta forme semplici caratterizzate in facciata da intervalli tra parti vetrate, murature piene con differenti finiture di intonaco e aree a cielo aperto che si relazionano alle aule interne. Il fabbricato, orientato secondo l’asse nord est/sud-ovest, è costituito da due piani fuori terra, per quel che riguarda la zona destinata alla didattica, un piano per quello relativo all’amministrazione e agli spogliatoi e infine un doppio volume per la palestra.
Le aule didattiche sono collocate sull’asse nord-ovest/sud-est, in maniera tale da evitare qualsiasi tipo di affaccio rivolto verso il tracciato ferroviario. Sono collocate sia a piano terra che al piano primo.
La maggior parte affaccia sul patio interno verde visibile dall’atrio di ingresso, mentre le restanti sono collocate nella zona
più ad est.
PROGETTO






EDIFICIO IN CORSO DI REALIZZAZIONE – ANNO 2024-2026






DICONO DI NOI
Saronno New – 01 dicembre 2025
Ecco la nuova scuola Rodari di Saronno: più bella, più funzionale, più ecologica
Il nuovo edificio riduce del 90,6% le emissioni di CO2 rispetto a quello attuale, preleva dalla rete elettrica il 49% di energia in meno e consuma il 98,5% di gas naturale in meno
I lavori di realizzazione della nuova scuola Rodari di via Toti possono finalmente iniziare. Espletati tutti i passaggi burocratici nei tempi previsti dal bando “Spazio alla scuola” di Regione Lombardia, il corposo intervento che porterà a Saronno un plesso scolastico all’avanguardia, innovativo e funzionale, dove l’attenzione alla didattica e al benessere dei bambini saranno priorità, ha visto l’accantieramento dell’area e, nei prossimi giorni, entrerà nel vivo degli scavi.
Ecco la nuova scuola Rodari di Saronno: più bella, più funzionale, più ecologica

L’assessore ai Lavori Pubblici, Francesca Pozzoli e il sindaco Augusto Airoldi, affiancati dall’assessore all’ambiente Franco Casali e ai tecnici comunali hanno spiegato che la scelta è stata quella di costruire un nuovo edificio mentre il vecchio continuerà a funzionare. Questo per ridurre al minimo i disagi per gli studenti. La nuova scuola avrà un costo di 11,2 milioni di euro, finanziati da Regione Lombardia con 7 milioni di euro, dal Ministero con 1,75 milioni di euro per il conto termico, e dal Comune con 2,3 milioni di euro senza ricorrere a mutui.
Nel mese di maggio è stata individuata l’impresa aggiudicataria dei lavori, così da avviare l’intervento in questa pausa estiva, e consentire poi, con l’inizio del nuovo anno scolastico, di proseguire con l’opera interferendo il meno possibile con la quotidianità delle lezioni. Grazie, infatti, all’attenzione dell’impresa che procederà per lotti, sarà possibile garantire la sicurezza dei ragazzi e la vivibilità dell’area.
Quello della nuova scuola Rodari è il primo progetto che vede la luce dopo la sottoscrizione del protocollo “Saronno per la terra” e rientra quindi, in parametri ambientali particolarmente severi.
L’amministrazione saronnese e i progettisti non si sono accontentati però di rispettare il criterio “NZEB” (Near Zero Energy Building, cioè edificio a consumo energetico quasi zero) richiesto dal bando, ma hanno migliorato, sotto il profilo ambientale, il giardino della nuova scuola e un parco del quartiere.
L’edificio manterrà, infatti, le altezze di quello esistente, ma occuperà una superficie più ampia per rispettare i nuovi requisiti post-Covid e dovrà essere ubicato tra la vecchia scuola (poi abbattuta) e il sedime ferroviario. Questo comporterà la rimozione di alcune alberature, che verranno compensate con nuove piantumazioni nel rapporto di 2,5 alberi nuovi per ognuno di quelli rimossi, sia all’interno del giardino della nuova scuola, sia all’esterno. In totale saranno 37 gli alberi rimossi, mentre 92 quelli di nuova piantumazione, 42 dei quali nell’area oggi occupata dalla vecchia scuola. Le altre 50 nuove alberature sono previste nelle aree verdi di via Toti/Gobetti e Toti/Pasubio, dove andremo a creare due aiuole didattiche (una con specie autoctone e l’altra con specie ornamentali), un percorso ludico, una xiloteca e a migliorare l’area cani esistente. Il tutto verrà arricchito da arredi in legno realizzati utilizzando le parti delle alberature rimosse, dando loro una “seconda vita”.
Questa compensazione arborea più che proporzionale e le prestazioni NZEB del nuovo plesso consentiranno un bilancio energetico e ambientale estremamente migliorativo per tutte le aree di intervento.
Il nuovo edificio riduce del 90,6% le emissioni di CO2 rispetto a quello attuale, preleva dalla rete elettrica il 49% di energia in meno e consuma il 98,5% di gas naturale in meno. Il saldo della CO2 assorbita ogni anno dalle nuove alberature rispetto a quelle esistenti sale da 2,55 a 4,02 tonnellate (+60%) a partire da subito, in quanto saranno messi a dimora esemplari adulti. A tutto questo dobbiamo aggiungere i benefici della presenza dell’impianto fotovoltaico sia sul tetto del plesso sia sul tetto della palestra, che produrrà 146.171 Kwh/annui, per un ulteriore risparmio emissivo di CO2 di 67,24 t/annue.
I lavori dovrebbero concludersi entro agosto 2026, con i collaudi finali previsti per novembre dello stesso anno.
Leggi anche: